Добро пожаловать на http://vipplan.ru

Випплан Шуя - это тысячи проектов домов в нашем каталоге!

Вы всегда сможете найти для себя проект дома вашей мечты! Даже если этого не случилось, мы готовы в любую минуту предложить проект индивидуального дома.

Забыли пароль?
Вы еще не регистрировались?

Перейдите по ссылке ниже на страницу регистрации.

Регистрация...

Внимание!!!

В проектную документацию могут быть внесены изменения любой сложности, в соответствии в Вашими пожеланиями!

Полезные статьи

Фундамент под гараж

Обычно фундаменты под гараж делаются из бетонного раствора и заливаются, как монолит. Гаражные фундаменты так же можно укладывать из бетона с применением бутового камня. Такие фундаменты тоже считаются монолитными. В этом случае происходит экономия бетона....

Проекты быстровозводимых домов и коттеджей в Шуе

Некоторые люди до сих пор считают, что быстровозводимые дома представляют собой безликие, недолговечные, однотипные строения. Эти утверждения не соответствуют действительности. На данный момент, строительные технологии шагнули вперед и дома «быстрого приготовления» считаются эталоном комфорта, уюта и даже выделяются, в архитектурном плане, на фоне дорогих кирпичных коттеджей. Быстровозводимые дома не дорогие и изготавливаются в кратчайшие сроки....

Проекты домов и коттеджей > Каталог проектов домов > Проект одноэтажного дома с мансардой и гаражом Vg2408

Проект одноэтажного дома с мансардой и гаражом Vg2408

Проект одноэтажного дома с мансардой и гаражом
Зарегистрируйтесь

Проект № Vg2408


Техническое описание
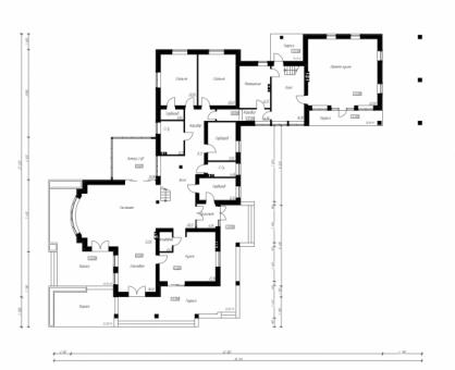
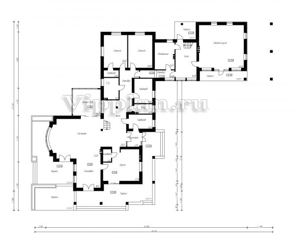
Общая площадь: 476.9 м2
Жилая площадь: 154.35 м2
Высота здания: 11.14 м
Размеры дома: 27.22м×38.12м
Цокольный этаж: нет
Гараж: нет
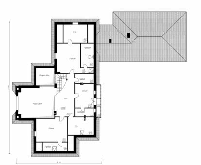
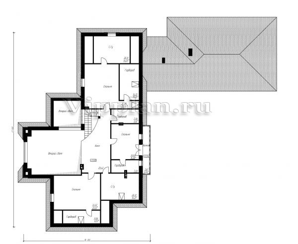
Мансарда: есть

Kонструкция
Фундамент: Ленточный
Перекрытия: Сборные ж/б плиты

Архитектурный раздел
АР+КР - 108 000 (Со скидкой 20%)
Проект индивидуального одноэтажного жилого дома с мансардой с размерами здания 27,22 x 38,12 м. Наружная отделка здания – фасадная штукатурка. Фундамент – ленточный монолитный ( под несущими стенами). Наружные стены – из забутовочного кирпича, с утеплением минеральной ватой и отделкой фасадной штукатуркой. Внутренние стены - из забутовочного кирпича. Перегородки – из забутовочного кирпича. Пол первого этажа - пол по грунту. Межэтажное перекрытие- сборные ж/б плиты. (по т.з) Крыша многоскатная. Кровля –битумная черепица. Окна — металлопластиковые
Генплан застройки участка / Паспорт проекта 7000 руб / 10000 руб
Инженерный раздел (полный) 238500 руб
Смета на строительство 119250 руб
Теплотехнический расчет материалов стен Бесплатно
Стоимость проекта со незначительнми изменениями 123050 руб
Стоимость проекта со средними изменениями* 158900 руб
Стоимость проекта со значительными изменениями** 168400 руб

План первого этажа



План мансардного этажа



Проект одноэтажного дома с мансардой и гаражом Проект одноэтажного дома с мансардой и гаражом Проект одноэтажного дома с мансардой и гаражом Проект одноэтажного дома с мансардой и гаражом

Модификации проектов

Внесение изменений и привязка к участку строительства

В любой из проектов от компании VIPplan - Шуя по вашему желанию могут быть внесены изменения в материалы стен, материалы наружной отделки дома, а также будет произведена адаптация проекта под конкретный регион строительства (с учетом грунтов региона, геологических особенностей вашего участка и местных климатических условий) - БЕСПЛАТНО !!! (кроме проектов со скидкой и проектов наших партнеров).

Любой из проектов, размещенных на сайте shuya.vipplan.ru мы можем выполнить из требуемых вам строительных материалов: ячеистый бетон (газобетон, пеноблок), керамоблок, кирпич, шлакоблок, бетонный блок, дерево (брус, клееный брус), каркасная технология (деревянный каркас, металлокаркас (ЛСТК)).

Фасад дома и его наружную отделку так же возможно выполнить с применением различных облицовочных материалов: структурной штукатурки, (с утеплителем и без), сайдингом (пластиковый или металлосайдинг), фиброплитами, кирпича.

 
6 Избранные
проекты

Доставка проектов по России: Москва (Московская область), Санкт-Петербург (Ленинградская область), Краснодар, Ростов-на-Дону, Ставрополь, Сочи, Волгоград, Новосибирск, Белгород, Брянск, Воронеж, Саратов, Хабаровск, Астрахань, Нальчик, Владикавказ, Екатеринбург, Тюмень, Самара, Нижний Новгород, Казань, Пермь, Уфа, Челябинск, Красноярск, Ханты-Мансийск, Иркутск, Курган, Оренбург, Омск, Томск, Барнаул, Новокузнецк, Кемерово, Абакан, Чита, Якутск, Южно-Сахалинск, Петропавловск-Камчатский и страны ближнего зарубежья: Белоруссия, Украина, Казахстан