Добро пожаловать на http://vipplan.ru

Випплан Шуя - это тысячи проектов домов в нашем каталоге!

Вы всегда сможете найти для себя проект дома вашей мечты! Даже если этого не случилось, мы готовы в любую минуту предложить проект индивидуального дома.

Забыли пароль?
Вы еще не регистрировались?

Перейдите по ссылке ниже на страницу регистрации.

Регистрация...

Внимание!!!

В проектную документацию могут быть внесены изменения любой сложности, в соответствии в Вашими пожеланиями!

Полезные статьи

Утепление стен дома изнутри

Утепление стен дома изнутри – это не правильный метод теплоизоляции помещения и используется в самом крайнем случае, когда других вариантов уже не остается. Как правило, утепление стен изнутри выполняется по незнанию или вынужденно, поскольку, теплоизоляция внутренних помещений дома другим способом невозможна. Вопросы теплоизоляции необходимо решать на стадии проектирования дома или коттеджа, а не тогда когда дом уже построен и приходится исправлять совершенные ошибки по факту....

Закладка фундамента дома

Закладка фундамента является одним из первых и самых главных этапов строительства любого дома. Все здание опирается именно на эту часть конструкции. Поэтому главная функция фундамента заключается в том, чтобы нести на себе весь вес несущих стен и кровли, а значит предотвращать появление перекоса стен, проседание сооружения, что неизбежно приводит к образованию трещин в стенах здания и в фундаменте....

Проекты домов и коттеджей > Каталог проектов домов > Проект двухэтажного дома с гаражом Vg1388

Проект двухэтажного дома с гаражом Vg1388

Проект двухэтажного дома с гаражом
Зарегистрируйтесь

Проект № Vg1388


Техническое описание
Общая площадь: 187.29 м2
Жилая площадь: 104.65 м2
Высота здания: 9.3 м
Размеры дома: 14.7м×14.4м
Кол-во комнат: 5
Цокольный этаж: нет
Гараж: нет
Мансарда: нет

Kонструкция
Фундамент: Монолитная плита
Перекрытия: Сборные ж/б плиты
Материал стен: Газобетон

Архитектурный раздел
Конструктивный раздел
АР+КР - 60 000 (Со скидкой 20%)
Проект индивидуального двухэтажного жилого дома с размерами здания 14,70 x 14,47 м. Наружная отделка здания – фасадной штукатуркой, клинкерной плиткой и деревянными панелями. Фундамент – монолитная плита ( под всей площадью дома). Наружные стены – газобетонные блоки. Внутренние стены - газобетонные блоки. Перегородки – газобетонные блоки. Пол первого этажа — пол по плите. Межэтажное перекрытие- сборные ж/б плиты. Крыша четырехскатная. Кровля – битумная черепица. Окна — металлопластиковые
Генплан застройки участка / Паспорт проекта 7000 руб / 10000 руб
Инженерный раздел (полный) 93500 руб
Смета на строительство 46750 руб
Теплотехнический расчет материалов стен Бесплатно
Стоимость проекта со незначительнми изменениями 70300 руб
Стоимость проекта со средними изменениями* 84400 руб
Стоимость проекта со значительными изменениями** 88100 руб

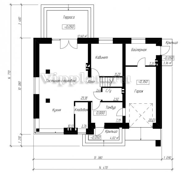
План первого этажа


Тамбур — 7,19 м2
Холл — 3,44 м2
Гостина-столовая — 29,18 м2
Кухня — 10,13 м2
Кладовая — 3,76 м2
Кабинет — 11,29 м2
С/у — 2,92 м2
Бойлерная — 7,31 м2
Гараж — 20,73 м2

Проект двухэтажного дома с гаражом

Проект двухэтажного дома с гаражом

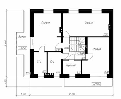
План второго этажа


Холл — 6,50 м2
Спальня — 23,20 м2
Спальня — 18,80 м2
Гардероб — 5,35 м2
Спальня — 22,18 м2
С/у — 6,05 м2
С/у — 6,33 м2
Проект двухэтажного дома с гаражом Проект двухэтажного дома с гаражом Проект двухэтажного дома с гаражом Проект двухэтажного дома с гаражом

Модификации проектов

Внесение изменений и привязка к участку строительства

В любой из проектов от компании VIPplan - Шуя по вашему желанию могут быть внесены изменения в материалы стен, материалы наружной отделки дома, а также будет произведена адаптация проекта под конкретный регион строительства (с учетом грунтов региона, геологических особенностей вашего участка и местных климатических условий) - БЕСПЛАТНО !!! (кроме проектов со скидкой и проектов наших партнеров).

Любой из проектов, размещенных на сайте shuya.vipplan.ru мы можем выполнить из требуемых вам строительных материалов: ячеистый бетон (газобетон, пеноблок), керамоблок, кирпич, шлакоблок, бетонный блок, дерево (брус, клееный брус), каркасная технология (деревянный каркас, металлокаркас (ЛСТК)).

Фасад дома и его наружную отделку так же возможно выполнить с применением различных облицовочных материалов: структурной штукатурки, (с утеплителем и без), сайдингом (пластиковый или металлосайдинг), фиброплитами, кирпича.

 
6 Избранные
проекты

Доставка проектов по России: Москва (Московская область), Санкт-Петербург (Ленинградская область), Краснодар, Ростов-на-Дону, Ставрополь, Сочи, Волгоград, Новосибирск, Белгород, Брянск, Воронеж, Саратов, Хабаровск, Астрахань, Нальчик, Владикавказ, Екатеринбург, Тюмень, Самара, Нижний Новгород, Казань, Пермь, Уфа, Челябинск, Красноярск, Ханты-Мансийск, Иркутск, Курган, Оренбург, Омск, Томск, Барнаул, Новокузнецк, Кемерово, Абакан, Чита, Якутск, Южно-Сахалинск, Петропавловск-Камчатский и страны ближнего зарубежья: Белоруссия, Украина, Казахстан