Добро пожаловать на http://vipplan.ru

Випплан Шуя - это тысячи проектов домов в нашем каталоге!

Вы всегда сможете найти для себя проект дома вашей мечты! Даже если этого не случилось, мы готовы в любую минуту предложить проект индивидуального дома.

Забыли пароль?
Вы еще не регистрировались?

Перейдите по ссылке ниже на страницу регистрации.

Регистрация...

Внимание!!!

В проектную документацию могут быть внесены изменения любой сложности, в соответствии в Вашими пожеланиями!

Полезные статьи

Газобетонные перекрытия

Перекрытия из газобетонных плит, устанавливаются без применения подъемников и кранов. Строители устанавливают прочные и, что немаловажно, легкие газоблоки без помощи техники. Ячеистый бетон (пенобетон и газобетон) нашел широкое применение в домах из пенобетона и газобетона в Шуе...

Приготовление раствора для наливного пола

Если вы хотите чтобы пол получился ровным, наливные полы – лучший вариант. Особое внимание следует уделить приготовлению раствора. А все потому, что после нанесения на цементную стяжку или бетонное основание внести коррективы или изменить что-либо уже не получится. Поэтому к замешиванию раствора стоит подходить очень внимательно....

Проекты домов и коттеджей > Каталог проектов домов > Компактный коттедж с гаражом Vg1365

Компактный коттедж с гаражом Vg1365

Компактный коттедж с гаражом
Зарегистрируйтесь

Проект № Vg1365


Техническое описание
Общая площадь: 97.83 м2
Жилая площадь: 57.5 м2
Высота здания: 8.19 м
Размеры дома: 10.88м×11.68м
Кол-во комнат: 4
Цокольный этаж: нет
Гараж: нет
Мансарда: нет

Kонструкция
Фундамент: Ленточный
Перекрытия: Сборные ж/б плиты
Материал стен: Газобетон

Архитектурный раздел
Конструктивный раздел
АР+КР - 44 000 (Со скидкой 20%)
Проект индивидуального двухэтажного жилого дома, размерами 10,88 х 11,68 м. Наружная отделка здания – облицовочный кирпич 2х цветов. Цоколь – клинкерная плитка. Кровля – металлочерепица. Фундамент – ленточный из блоков ФБС. Наружные стены: газобетонные блоки, утеплитель – экструдированный пенополистирол, воздушный зазор, облицовочный кирпич. Внутренние стены и перегородки – забутовочный кирпич. Отделка вентканалов и дымоходов – клинкерная плитка. Пол первого этажа – пол по грунту. Межэтажное перекрытие - сборные плиты перекрытия. Чердачное перекрытие - по деревянным балкам с использованием теплошумоизоляционных материалов типа «URSA» в межбалочном пространстве. Крыша четырехскатная. Окна металлопластиковые, выполненные по индивидуальному заказу.
Генплан застройки участка / Паспорт проекта 7000 руб / 10000 руб
Инженерный раздел (полный) 50000 руб
Смета на строительство 25000 руб
Теплотехнический расчет материалов стен Бесплатно
Стоимость проекта со незначительнми изменениями 52550 руб
Стоимость проекта со средними изменениями* 59900 руб
Стоимость проекта со значительными изменениями** 61900 руб

План первого этажа


Тамбур — 2,09 кв м
Гостиная — 25,54 кв м
Кухня — 8,40 кв м
С/у — 5,97 кв м
Гараж — 15,45 кв м

Компактный коттедж с гаражом

Компактный коттедж с гаражом

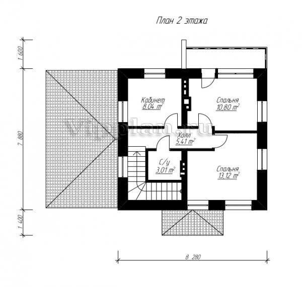
План второго этажа


Холл — 5,41 кв м
Кабинет — 8,04 кв м
Спальня — 10,80 кв м
Спальня — 13,12 кв м
С/у — 3,01 кв м
Компактный коттедж с гаражом Компактный коттедж с гаражом Компактный коттедж с гаражом Компактный коттедж с гаражом

Модификации проектов

Внесение изменений и привязка к участку строительства

В любой из проектов от компании VIPplan - Шуя по вашему желанию могут быть внесены изменения в материалы стен, материалы наружной отделки дома, а также будет произведена адаптация проекта под конкретный регион строительства (с учетом грунтов региона, геологических особенностей вашего участка и местных климатических условий) - БЕСПЛАТНО !!! (кроме проектов со скидкой и проектов наших партнеров).

Любой из проектов, размещенных на сайте shuya.vipplan.ru мы можем выполнить из требуемых вам строительных материалов: ячеистый бетон (газобетон, пеноблок), керамоблок, кирпич, шлакоблок, бетонный блок, дерево (брус, клееный брус), каркасная технология (деревянный каркас, металлокаркас (ЛСТК)).

Фасад дома и его наружную отделку так же возможно выполнить с применением различных облицовочных материалов: структурной штукатурки, (с утеплителем и без), сайдингом (пластиковый или металлосайдинг), фиброплитами, кирпича.

 
6 Избранные
проекты

Доставка проектов по России: Москва (Московская область), Санкт-Петербург (Ленинградская область), Краснодар, Ростов-на-Дону, Ставрополь, Сочи, Волгоград, Новосибирск, Белгород, Брянск, Воронеж, Саратов, Хабаровск, Астрахань, Нальчик, Владикавказ, Екатеринбург, Тюмень, Самара, Нижний Новгород, Казань, Пермь, Уфа, Челябинск, Красноярск, Ханты-Мансийск, Иркутск, Курган, Оренбург, Омск, Томск, Барнаул, Новокузнецк, Кемерово, Абакан, Чита, Якутск, Южно-Сахалинск, Петропавловск-Камчатский и страны ближнего зарубежья: Белоруссия, Украина, Казахстан