Добро пожаловать на http://vipplan.ru

Випплан Шуя - это тысячи проектов домов в нашем каталоге!

Вы всегда сможете найти для себя проект дома вашей мечты! Даже если этого не случилось, мы готовы в любую минуту предложить проект индивидуального дома.

Забыли пароль?
Вы еще не регистрировались?

Перейдите по ссылке ниже на страницу регистрации.

Регистрация...

Внимание!!!

В проектную документацию могут быть внесены изменения любой сложности, в соответствии в Вашими пожеланиями!

Полезные статьи

Приобретение земельного участка в собственность

Вы собираетесь приобрести участок. Прежде чем принять окончательное решение, тщательно изучите местность, на которой находится ваш участок, внимательно осмотрите местность. Узнайте о близости реки или других водоемах, всмотритесь в рельеф. Каждый из факторов может иметь неоспоримые плюсы, а также минусы, способные повлиять на окончательное решение. Стоит принять во внимание, что земельные участки, которые продаются «напрямую», дешевле тех, которые реализуют, пользуясь услугами посредников....

Виды фундаментов

Можно смело сказать, что самое главное качество фундамента - надежность. Фундамент дома бывает нескольких видов. Все они отличаются прочностью, технологией закладывания и областью использования. Запомните, экономить на фундаменте – плохая идея. Затраты на ремонт будут огромными, а зачастую в случае нарушения технологии закладки фундамента исправить ошибку будет невозможно....

Проекты домов и коттеджей > Каталог проектов домов > Проект особняка с мансардой и гаражом Vg1204

Проект особняка с мансардой и гаражом Vg1204

Проект особняка с мансардой и гаражом
Зарегистрируйтесь

Проект № Vg1204


Техническое описание
Общая площадь: 323.72 м2
Жилая площадь: 136.38 м2
Высота здания: 9.56 м
Размеры дома: 21.78м×12.98м
Кол-во комнат: 5
Цокольный этаж: нет
Гараж: нет
Мансарда: есть

Kонструкция
Фундамент: Ленточный
Перекрытия: Деревянные балки
Материал стен: Газобетон

Архитектурный раздел
Конструктивный раздел
АР+КР - 84 000 (Со скидкой 20%)
Проект индивидуального двухэтажного жилого дома с мансардой и подвалом, размерами 21,78 х 12,98 м. Наружная отделка здания – облицовочный кирпич. Цоколь – камень. Вентканалы и дымоходы — клинкерная плитка. Кровля – металлочерепица. Фундамент – ленточный монолитный и свайно-ростверковый (буронабивной). Наружные стены: газобетонные блоки, воздушный зазор, облицовочный кирпич. Внутренние стены и перегородки – каркасные с ГКЛ. Пол первого этажа – пол по грунту. Перекрытие над подвалом — монолитная ж/б плита. Межэтажное перекрытие - по деревянным балкам с использованием теплошумоизоляционных материалов типа «URSA» в межбалочном пространстве. Крыша многоскатная. Окна металлопластиковые, выполненные по индивидуальному заказу.
Генплан застройки участка / Паспорт проекта 7000 руб / 10000 руб
Инженерный раздел (полный) 162000 руб
Смета на строительство 81000 руб
Теплотехнический расчет материалов стен Бесплатно
Стоимость проекта со незначительнми изменениями 96900 руб
Стоимость проекта со средними изменениями* 121200 руб
Стоимость проекта со значительными изменениями** 127700 руб

План цокольного этажа


Помещение 1 — 8,97 м2
Помещение 2 — 4,95 м2
Помещение 3 — 6,80 м2

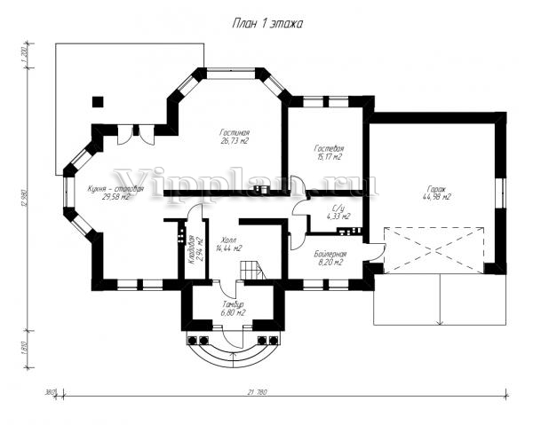
План первого этажа


Тамбур — 6,80 м2
Холл — 14,44 м2
Кладовая — 2,94 м2
Кухня — 29,58 м2
Гостиная — 26,73 м2
Гостевая — 15,17 м2
С/у — 4,33 м2
Бойлерная — 8,20 м2
Гараж — 44,98 м2

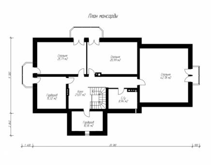
План мансардного этажа


Холл — 21,07 м2
Спальня — 25,71 м2
Спальня — 25,99 м2
Гардероб — 15,32 м2
С/у — 8,94 м2
Гардероб — 10,16 м2
Спальня — 42,78 м2
Проект особняка с мансардой и гаражом Проект особняка с мансардой и гаражом Проект особняка с мансардой и гаражом Проект особняка с мансардой и гаражом
Внесение изменений и привязка к участку строительства

В любой из проектов от компании VIPplan - Шуя по вашему желанию могут быть внесены изменения в материалы стен, материалы наружной отделки дома, а также будет произведена адаптация проекта под конкретный регион строительства (с учетом грунтов региона, геологических особенностей вашего участка и местных климатических условий) - БЕСПЛАТНО !!! (кроме проектов со скидкой и проектов наших партнеров).

Любой из проектов, размещенных на сайте shuya.vipplan.ru мы можем выполнить из требуемых вам строительных материалов: ячеистый бетон (газобетон, пеноблок), керамоблок, кирпич, шлакоблок, бетонный блок, дерево (брус, клееный брус), каркасная технология (деревянный каркас, металлокаркас (ЛСТК)).

Фасад дома и его наружную отделку так же возможно выполнить с применением различных облицовочных материалов: структурной штукатурки, (с утеплителем и без), сайдингом (пластиковый или металлосайдинг), фиброплитами, кирпича.

 
6 Избранные
проекты

Доставка проектов по России: Москва (Московская область), Санкт-Петербург (Ленинградская область), Краснодар, Ростов-на-Дону, Ставрополь, Сочи, Волгоград, Новосибирск, Белгород, Брянск, Воронеж, Саратов, Хабаровск, Астрахань, Нальчик, Владикавказ, Екатеринбург, Тюмень, Самара, Нижний Новгород, Казань, Пермь, Уфа, Челябинск, Красноярск, Ханты-Мансийск, Иркутск, Курган, Оренбург, Омск, Томск, Барнаул, Новокузнецк, Кемерово, Абакан, Чита, Якутск, Южно-Сахалинск, Петропавловск-Камчатский и страны ближнего зарубежья: Белоруссия, Украина, Казахстан